New Development in Waitsfield!
Posted on 11/27/2023 by Erik H. Reisner
New development in Waitsfield!
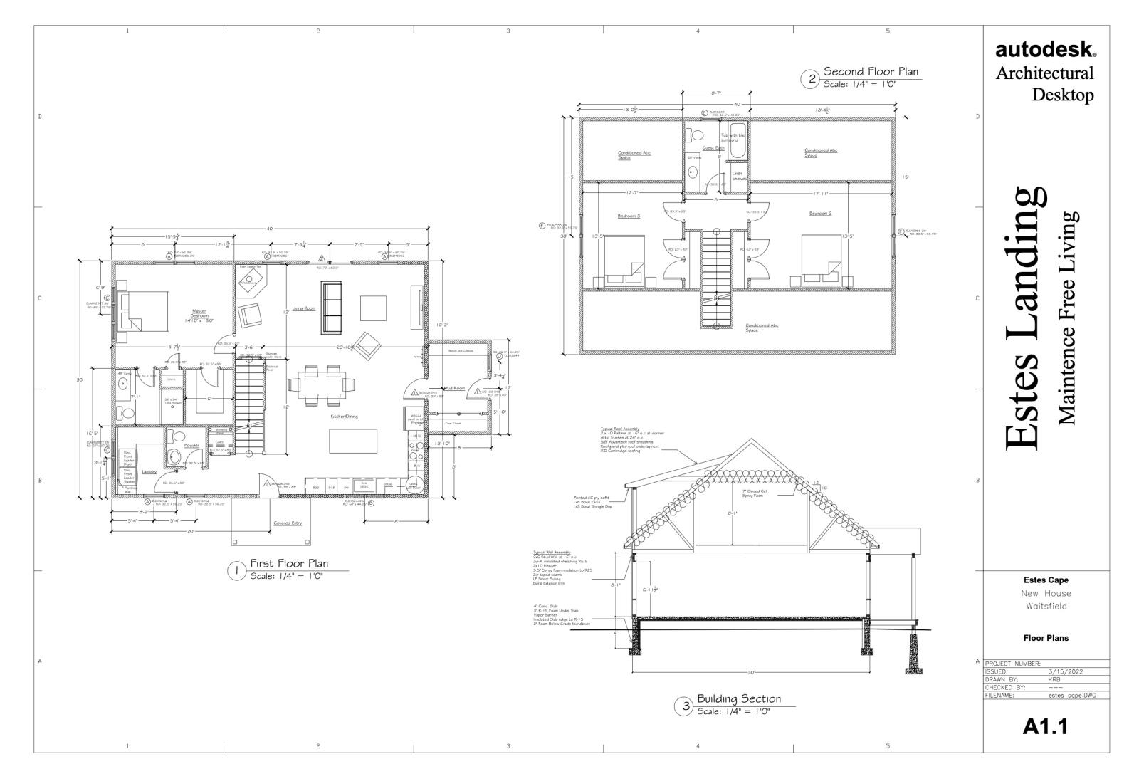
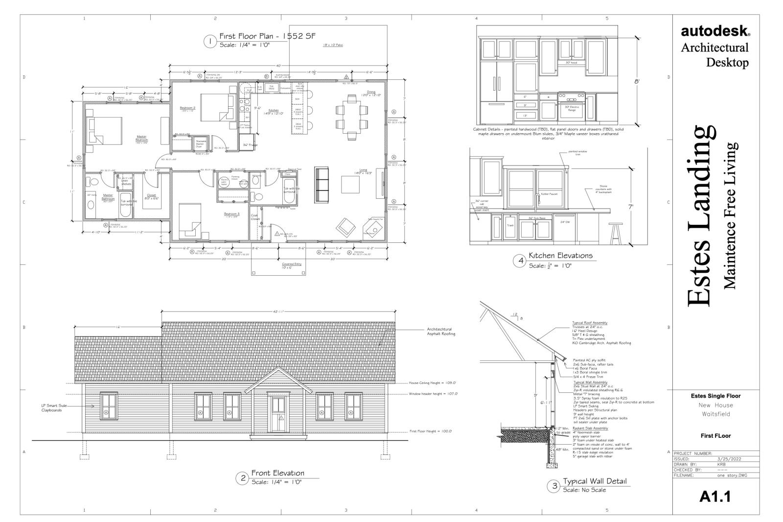
With the housing inventory near historic lows in the Mad River Valley, Central Vermont, and beyond, we are very excited about the new development at Estes Landing in Waitsfield. There will be a total of 20 homes consisting of two floor plans, a 2,040 square foot Cape, and a 1,900 square foot 1-story Flat. Both will have three bedrooms and an attached garage.


Currently there is one Cape complete and Under Contract. Within a week or so another Cape and a Flat will be completed. Three more foundations have been poured, plumbed, and insulated with completion estimated for Spring of 2024.


These single-family homes are super-efficient with a 5+ Star energy rating. The entire building envelope has spray foam insulation. Heating and cooling come from a multi-zone heat pump and air recovery system, supplemented by a pellet stove in the living room. There is also radiant heat in the full bathroom floors for added comfort.

Estes Landing combines desirable single family home living with the convenience of condominium-style exterior grounds maintenance and services. Located just north of Historic Waitsfield Village, this location is equally well suited for commuting, recreating, or retirement!
