Mad River Valley Real Estate - Go to homepage

90 King Street, Northfield, VT
Under Contract


  • $149,000
  • 2 bedrooms
  • 1 bathrooms
  • 1056 ft2
  • 0.25 acres

Property Description

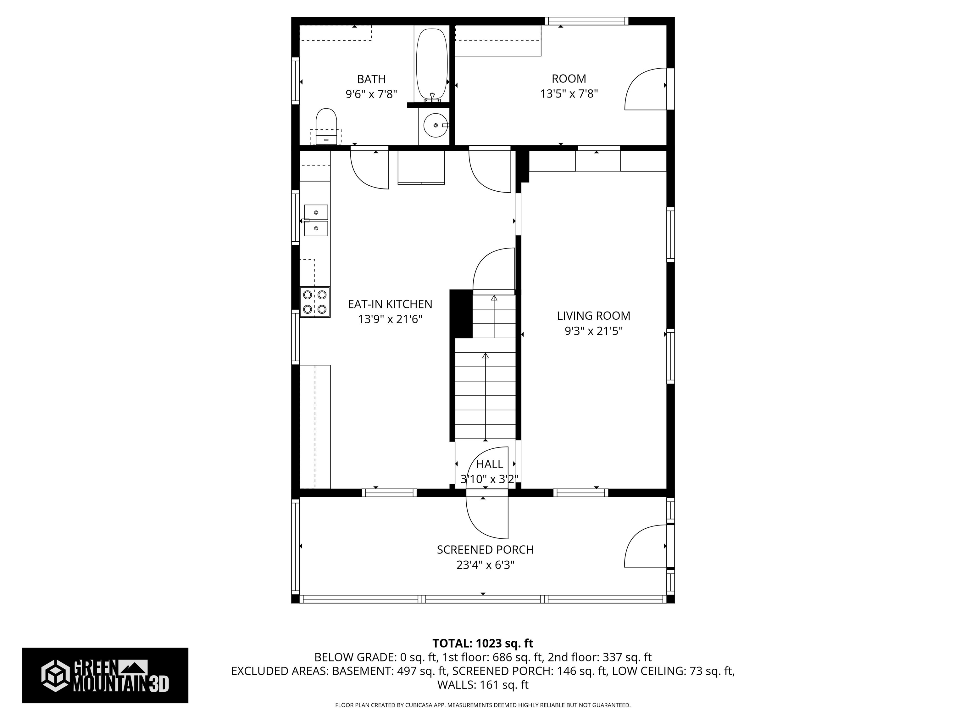
Opportunity awaits just a few short steps from downtown Northfield. This 2 bedroom 1 bathroom home has a large private fenced in back yard, a standing seam roof, and a newer furnace. The home will need some work to get it back to its glory, but is functional and was occupied up until late summer. Close to the town pool, rec fields, and downtown amenities, this home is perfect for someone looking to gain some sweat equity.

Property Details

Basic Information

MLS Number:
5071903
List Price:
$149,000
Bedrooms:
2
Bathrooms:
1

Location

Street:
King Street
Building Number:
90
City:
Northfield
State:
VT
Zip:
05663
County:
Washington
School District:
Central Vermont Supervisory Union
Elementary School:
Northfield Elementary School
Middle School:
Northfield Middle High School
High School:
Northfield High School

Property

Acres:
0.25
Lot Description:
Sloping,
In Town,
Near Shopping,
Neighborhood,
Near School(s)
Zoning:
High density res
Driveway:
Paved
Property Type:
SFR

Building

Year Built:
1800
Full Baths:
1
Floors:
Laminate,Wood
Total Rooms:
5
Basement:
Dirt Floor
Foundation:
Stone
Construction:
Wood Frame
Square Feet:
1056

Interior

Kitchen Size:
Has Kitchen
Living Room Size:
Has Living Room
Interior Features:
Kitchen/Dining,Laundry Hook-ups,1st Floor Laundry

Exterior

Roof:
Standing Seam
Exterior:
Full Fence,Shed

Utilities

Electric:
100 Amp Service,Circuit Breaker(s)
Cooling:
None
Sewer:
Public

Legal

Surveyed:
Unknown
Taxes:
$3,080.89

Amenities

Appliances:
Refrigerator,
Electric Stove

Other

Broker Name:
RE/MAX North Professionals
Agent Name:
Brandon Fowler
Office Phone:
802-655-3333
Status:
Active Under Contract
Latitude:
44.149490
Longitude:
-72.653425
Waterfront:
No

Map

Get Directions
Broker Reciprocity PrimeMLS

Copyright PrimeMLS, Inc. All rights reserved. This information is deemed reliable, but not guaranteed. The data relating to real estate displayed on this display comes in part from the IDX Program of PrimeMLS. The information being provided is for consumers; personal, noncommercial use and may not be used for any purpose other than to identify prospective properties consumers may be interested in purchasing. Data last updated 1/7/2026.
Mortgage calculator source: iHomefinder. Schools info source: GreatSchools. WalkScore source: WalkScore. Market Report Source: iHomefinder with data from PrimeMLS, Inc.

5513 Main Street, Waitsfield, VT 05673 | 802-496-5000 | www.mrvre.com