Mad River Valley Real Estate - Go to homepage

275 Wall Street, Northfield, VT


  • $298,000
  • 0 bathrooms
  • 4080 ft2
  • 0.25 acres

Property Description

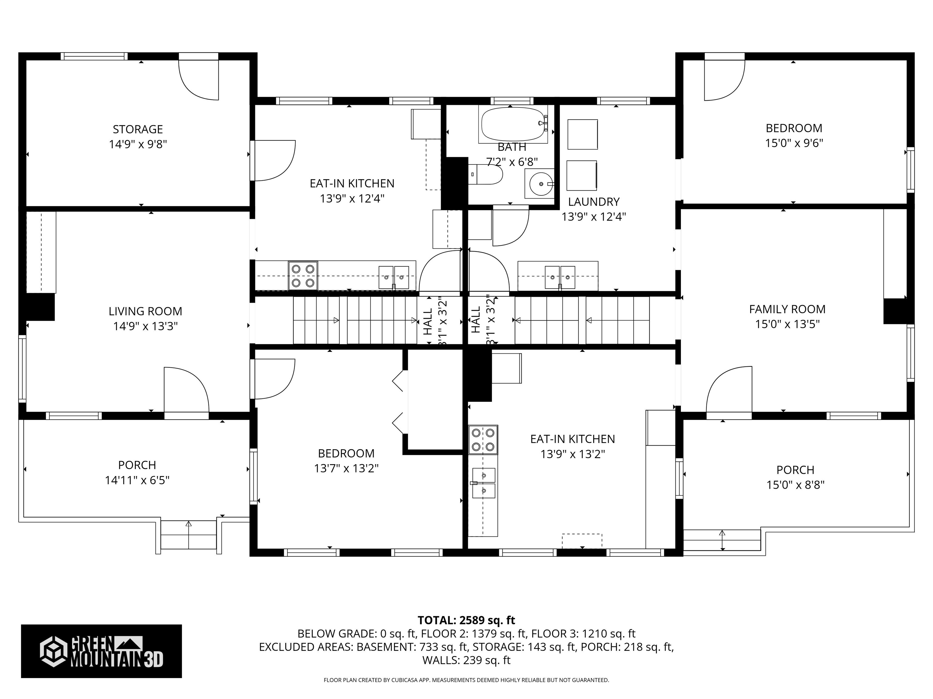
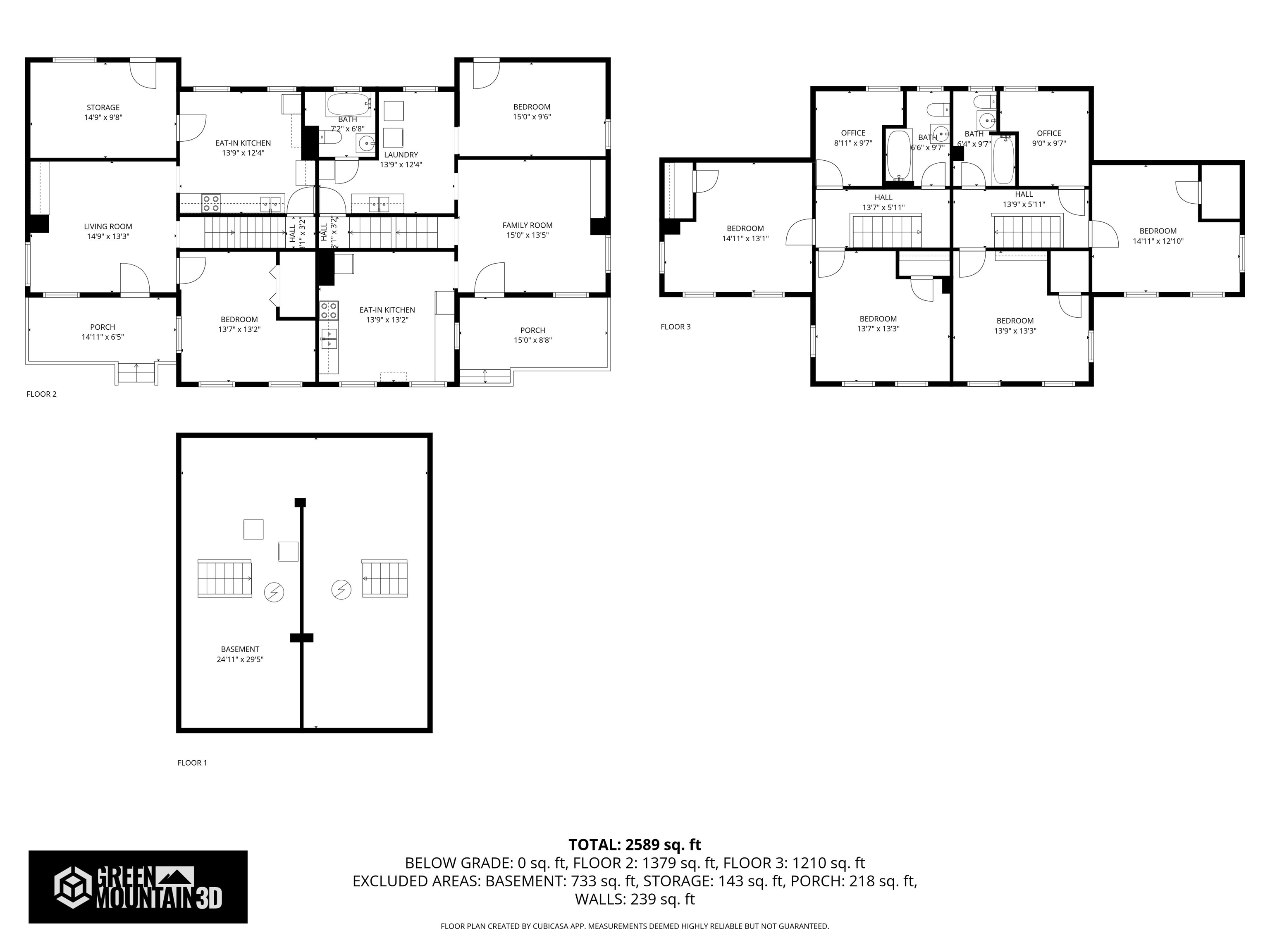
Conveniently located near Northfield Village and Norwich University, this well-maintained multi-unit property offers two spacious three-bedroom apartments--ideal for investors or owner-occupants alike. Each unit provides comfortable living spaces with a solid rental history and reliable, established tenants generating a gross income of approximately $35,000 per year. The home has seen thoughtful updates, including a new roof installed in June 2019 and fresh exterior paint completed in May 2022, ensuring peace of mind and lasting curb appeal. Enjoy easy access to local schools, the recreation field, park, and nearby walking paths. Outdoor enthusiasts will appreciate the close proximity to hiking and mountain biking trails, as well as opportunities for backcountry skiing right from the area. When winter arrives, world-class downhill skiing in the Mad River Valley is just a 35-minute drive away. This property offers a rare combination of strong income potential and an excellent location for enjoying all that Central Vermont has to offer. With an easy commute to Montpelier and Interstate 89, it's perfectly situated for both convenience and lifestyle.

Property Details

Basic Information

MLS Number:
5064766
List Price:
$298,000
Bathrooms:
0
Virtual Tour:
View Virtual Tour

Location

Street:
Wall Street
Building Number:
275
City:
Northfield
State:
VT
Zip:
05663
County:
Washington
School District:
Paine Mountain School District
Elementary School:
Northfield Elementary School
Middle School:
Northfield Middle High School
High School:
Northfield High School

Property

Acres:
0.25
Lot Description:
Level,
Sidewalks,
Street Lights,
In Town,
Neighborhood,
Near School(s)
Zoning:
High Density Residential
Driveway:
Common/Shared,
Dirt
Property Type:
RI

Building

Year Built:
1900
Basement:
Interior
Foundation:
Fieldstone,Granite
Style:
Apartment Building,Colonial,Multi-Family
Construction:
Wood Siding
Square Feet:
4080

Exterior

Roof:
Shingle

Utilities

Electric:
100 Amp Service,Circuit Breaker(s),On-Site
Cooling:
None
Sewer:
Public

Legal

Surveyed:
Unknown

Other

Broker Name:
Vermont Real Estate Company
Agent Name:
Lucas deSousa
Office Phone:
802-540-8300
Status:
Active
Latitude:
44.149023
Longitude:
-72.661815

Map

Get Directions
Broker Reciprocity PrimeMLS

Copyright PrimeMLS, Inc. All rights reserved. This information is deemed reliable, but not guaranteed. The data relating to real estate displayed on this display comes in part from the IDX Program of PrimeMLS. The information being provided is for consumers; personal, noncommercial use and may not be used for any purpose other than to identify prospective properties consumers may be interested in purchasing. Data last updated 12/7/2025.
Mortgage calculator source: iHomefinder. Schools info source: GreatSchools. WalkScore source: WalkScore. Market Report Source: iHomefinder with data from PrimeMLS, Inc.

5513 Main Street, Waitsfield, VT 05673 | 802-496-5000 | www.mrvre.com